Property Management
Real Estate Development
949.833.5400

 
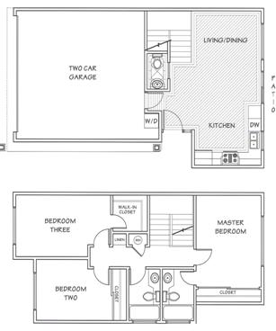
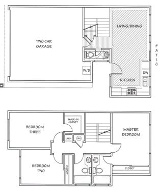
  Residential Project - Oak Crest Villas